<< TORNA ALLA PAGINA DEL CANTIERE

VILLA 3

VILLA 3 – villa di testa lato sant’Elena (sup. comm. 154 mq)

L’ingresso all’abitazione avviene nella zona giorno open space, dal soggiorno si prosegue nela zona pranzo e si termina con la cucina. Il giardino, rivolto verso la pianura, circonda su due lati la casa e permette a tutta la zona giorno l’affaccio e l’accesso grazie alle portefinestre che illuminano il locale. Al piano terra c’è anche un servizio igienico finestrato.

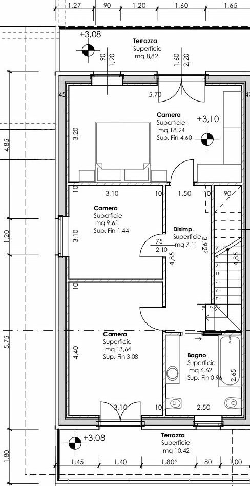
Salendo le scale, al primo piano si trova la zona notte composta da tre camere: una matrimoniale con terrazza in direzione dei monti, una singola e una doppia anch’essa con terrazza con vista sulla pianura. Il piano si completa con un bagno finestrato.

L’abitazione è dotata di cantina e posto auto.

PIANO TERRA

PIANO TERRA

PIANO PRIMO

PIANO PRIMO

Richiedi una visita con un nostro incaricato

Tel. +39 0432 733825